Die Meldung in Bildern
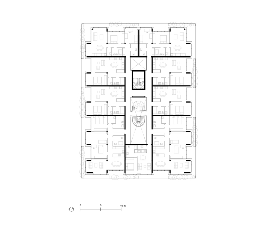
Offenes Wohnen im Thulekiez
Zanderroth Architekten in Berlin-Pankow
Bild 19/23
Grundriss Regelgeschosse 2, 4