Die Meldung in Bildern
Klinkerspiele in Hamburg
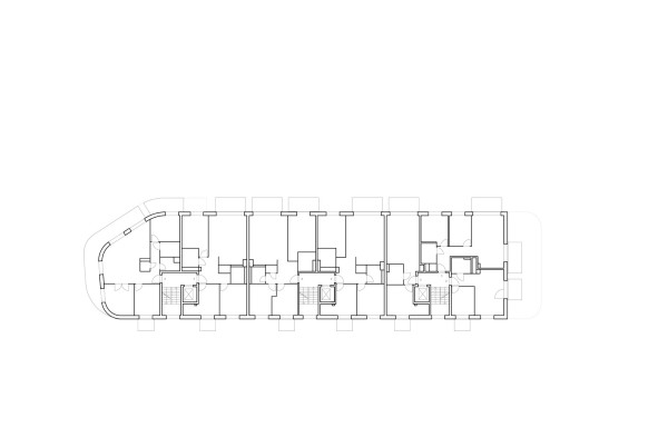
Wohnungsbau von Wandel Lorch
Bild 36/41
3. OG