Die Meldung in Bildern
Klinkerspiele in Hamburg
Wohnungsbau von Wandel Lorch
Bild 35/41
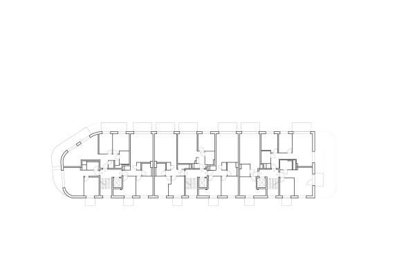
2. OG