Wohnungsbau von Gerner Gerner Plus. in Wien
Bild 11/17
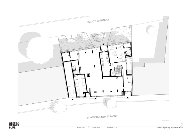
Grundriss Erdgeschoss
Bild: GERNER GERNER PLUS