Wohnturm in Zürich, Silk Architekten, Wohnhaus in der Schweiz, Hammerstraße, Steffen Lämmerzahl, Vetsch Architektor AG, kleines Grundstück, Architekten bauen für Architekten

Bild 4/14

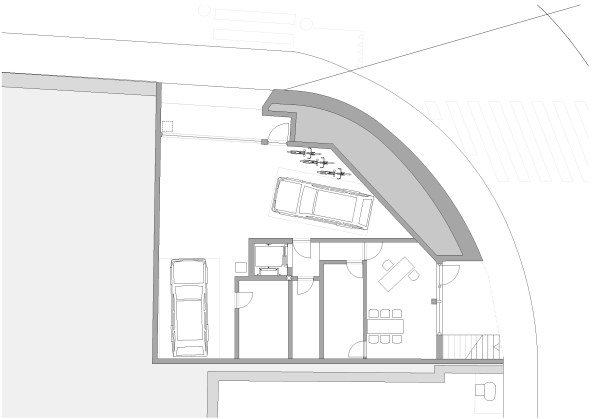
Grundriss UG