Die Meldung in Bildern
Kaulsdorfer Experiment
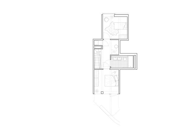
Wohnkomplex in Berlin von FAR frohn&rojas
Bild 27/31
Maisonette, obere Ebene
Bild: FAR frohn&rojas