Die Meldung in Bildern
Kaulsdorfer Experiment
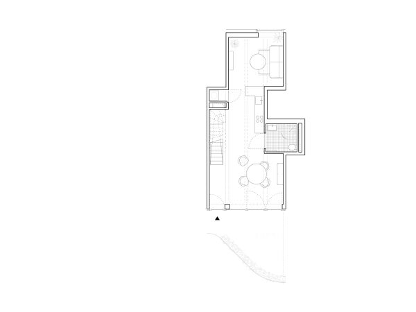
Wohnkomplex in Berlin von FAR frohn&rojas
Bild 26/31
Maisonette, untere Ebene
Bild: FAR frohn&rojas