Wohnhausumbau von Jochen Klein in Berlin
Bild 29/36
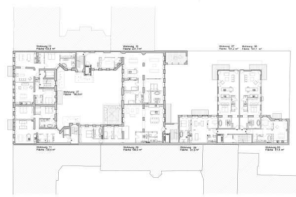
Grundriss 2. Obergeschoss
Bild: Jo Klein Architekten