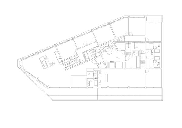
Wohnhausaufstockung von Lacroix Chessex in Genf
Bild 47/53
Grundriss der Spitze, achter Stock
Bild: Lacroix Chessex