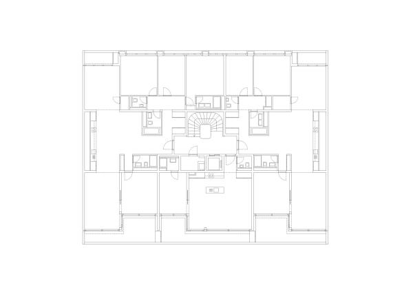
Wohnhausaufstockung von Lacroix Chessex in Genf
Bild 37/53
Hinterer Abschnitt, siebter Stock
Bild: Lacroix Chessex