Bild 34/53
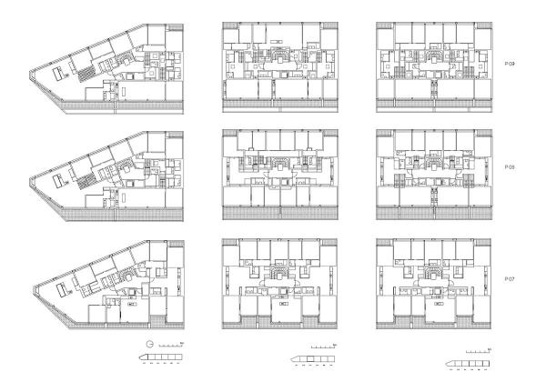
Die drei Abschnitte haben unterschiedlich viele Wohnungen: in der Spitze befinden sich sieben, in den mittleren acht und den hinteren neun.
Bild: Lacroix Chessex
Bild 34/53
Die drei Abschnitte haben unterschiedlich viele Wohnungen: in der Spitze befinden sich sieben, in den mittleren acht und den hinteren neun.
Bild: Lacroix Chessex