Die Meldung in Bildern
Kompakt im Block
Wohnhaus von wild bär heule in Winterthur
Bild 13/16
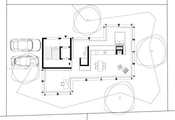
Grndriss Erdgeschoss