Die Meldung in Bildern
Tschechische Traditionen
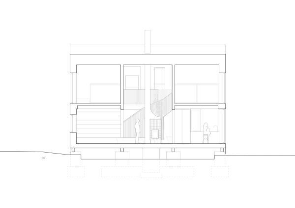
Wohnhaus von Studio Circle Growth in Karlstein
Bild 26/28
Schnitt
Bild: Studio Circle Growth