Die Meldung in Bildern
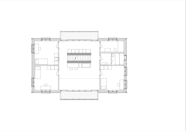
Alpnacher Holzornament
Wohnhaus von Seiler Linhart Architekten in der Innerschweiz
Bild 14/23
Erstes Obergeschoss