Die Meldung in Bildern
Alpnacher Holzornament
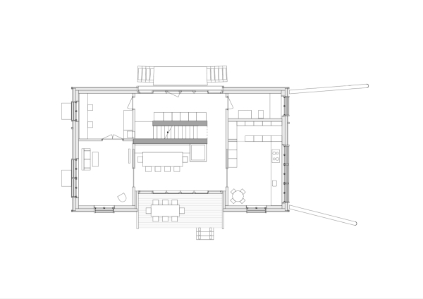
Wohnhaus von Seiler Linhart Architekten in der Innerschweiz
Bild 13/23
Erdgeschoss