Manuel Herz Architekten, Neubau, Köln, Wohnhaus, Wohnungsbau, Arthron, Bayenthal

Bild 19/26

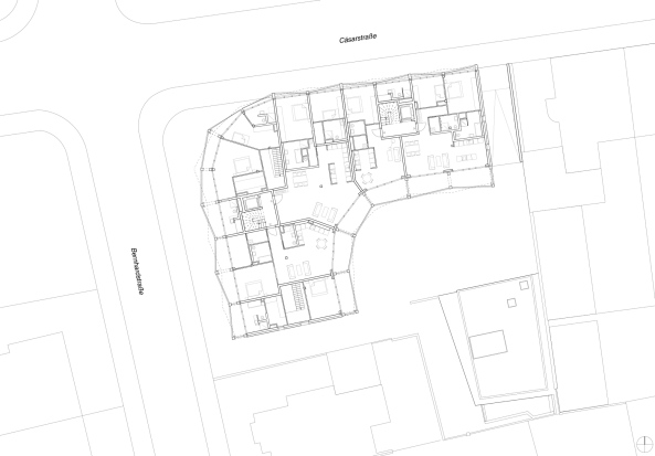
Grundriss 1. Obergeschoss

Bild: Manuel Herz Architekten