Die Meldung in Bildern
Abgestuft angebaut
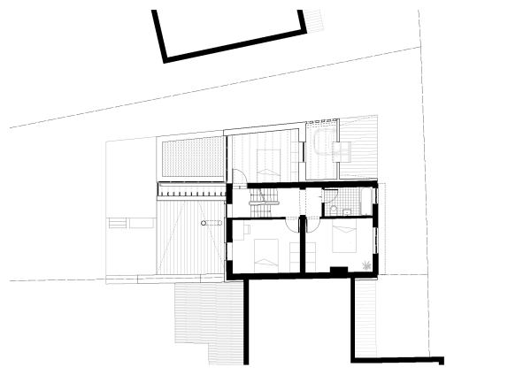
Wohnhaus von Bauclub in Brüssel
Bild 30/38
Grundriss 1. Obergeschoss
Bild: Bauclub