Die Meldung in Bildern
Abgestuft angebaut
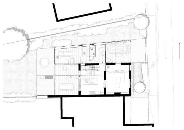
Wohnhaus von Bauclub in Brüssel
Bild 29/38
Grundriss Erdgeschoss
Bild: Bauclub