Die Meldung in Bildern
Davide Macullo meets Daniel Buren
Wohnhaus in den Schweizer Alpen
Bild 16/25
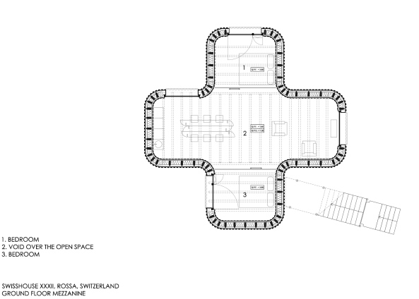
Grundriss Erdgeschoss Mezzanine
Bild: Davide Macullo