Die Meldung in Bildern
Davide Macullo meets Daniel Buren
Wohnhaus in den Schweizer Alpen
Bild 15/25
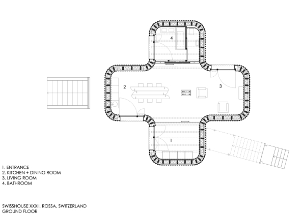
Grundriss Erdgeschoss
Bild: Davide Macullo