Die Meldung in Bildern
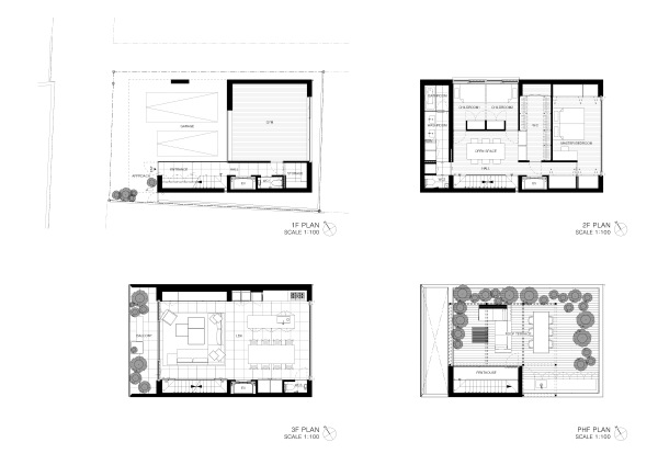
Unten massiv, oben luftig
Wohnhaus in Tokio von Apollo Architects
Bild 32/34
Bild: Apollo Architects