Die Meldung in Bildern
In den Hügeln von Hampshire
Wohnhaus in Südengland von Snug Architects
Bild 13/16
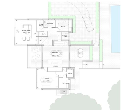
Grundriss Erdgeschoss
Bild: snug architects