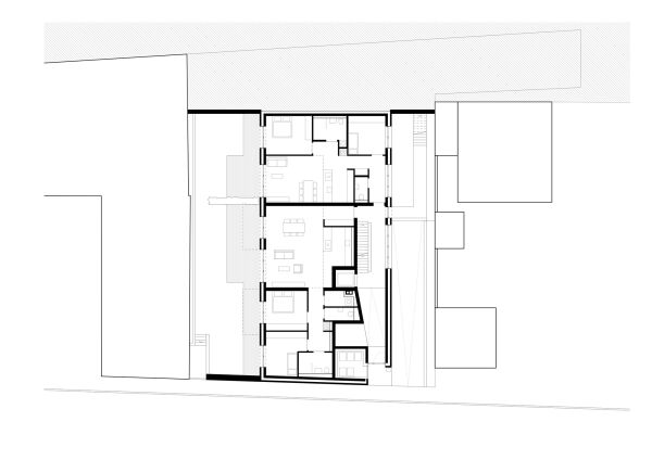
Wohnhaus in Stuttgart von Bottega + Ehrhardt Architekten
Bild 16/21
Grundriss Erdgeschoss
Bild: Bottega + Ehrhardt