Die Meldung in Bildern
Partys nur im Garten
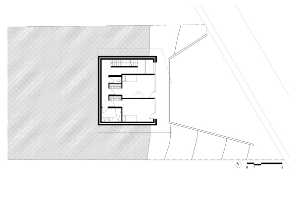
Wohnhaus in Sinzig-Westum von Florian Hertweck
Bild 15/17
EG
Bild: Florian Hertweck