Die Meldung in Bildern
Schlankes Schwarzes
Wohnhaus in Santiago de Chile von ThiermannCruz
Bild 22/32
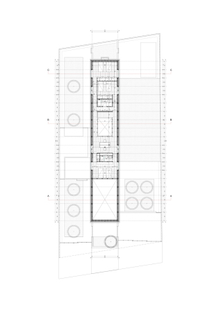
Erstes Obergeschoss