Die Meldung in Bildern
Schlankes Schwarzes
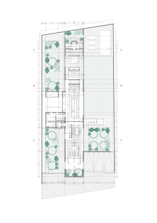
Wohnhaus in Santiago de Chile von ThiermannCruz
Bild 21/32
Erdgeschoss