Die Meldung in Bildern
Abgestuft am Park
Wohnhaus in Paris von Lambert Lénack
Bild 15/19
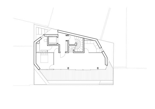
Grundriss 6. Obergeschoss
Bild: Lambert Lénack