Die Meldung in Bildern
Abgestuft am Park
Wohnhaus in Paris von Lambert Lénack
Bild 13/19
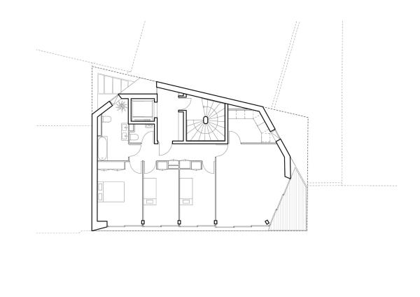
Grundriss 1. Obergeschoss
Bild: Lambert Lénack