Wohnhaus, Beton, Umbau, Neubau, Erweiterung, Bestand, Östereich, Rheintal, Dornbirn, Bodensee, Hang, Abhnag, Wohnhaus, Villa, Einfamilienhaus, Hanglage, Jochen Specht, Architekt, Haus Hohlen, Holzbau, Vorfertigung, Konstruktion, Holzkonstruktion, Sanierung, Pfosten-Riegel-Skelett, Bootsbau

Bild 24/26

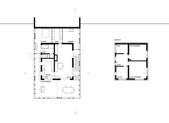
Grundriss Obergeschoss

Bild: Jochen Specht