Wohnhaus in Bremen von Praeger Richter Architekten
Bild 17/22
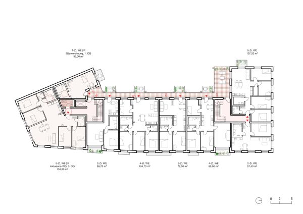
Grundriss Regelgeschoss
Bild: Praeger Richter Architekten