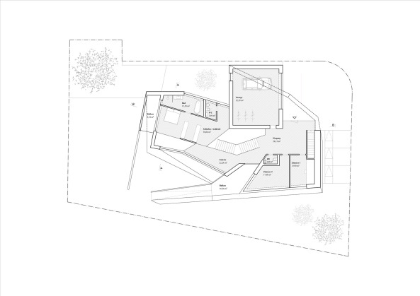
Aalen, Wohnhaus, Kayser Architekten, ad2 Architekten, 2017, Aluminium-Fassade

Bild 19/26