Die Meldung in Bildern
Kompromisslos in Braunschweig
Wohnen in Holz und Beton
Bild 18/22
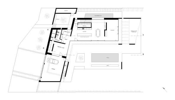
Grundriss Erdgeschoss
Bild: Atelier Axel Nieberg