Wohnblock von Atelier Kempe Thill in Hasselt
Bild 30/34
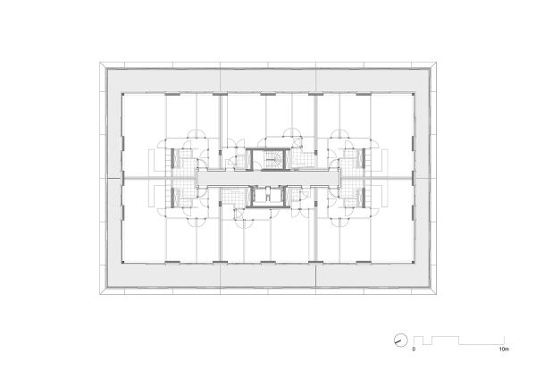
Grundriss 4. Obergeschoss
Bild: Atelier Kempe Thill