Die Meldung in Bildern
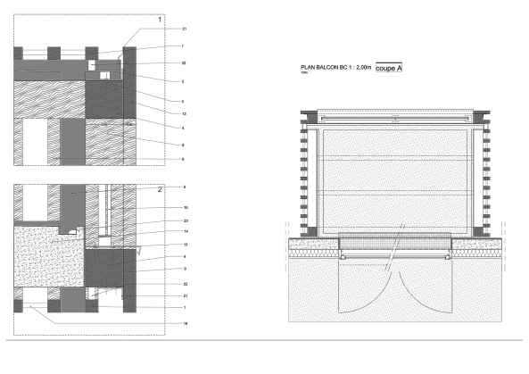
Balkons auf Stelzen
Wohnanlage bei Paris von Brenac & Gonzalez
Bild 37/42
Balkondetail
Bild: Brenac & Gonzalez