Die Meldung in Bildern
Einfach Wohnen in Zürich
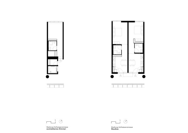
Wohn- und Gewerbeensemble von Donet Schäfer Reimer
Bild 28/37
Bild: Donet Schäfer Reimer