baunetz, architektur, architecture, wettbewerb, competiton, germany, deutschland, heidelberg, stadtviertel, bahnstadt, güterbahnhofsfläche, hauptbahnhof, wohngebiet, arbeitsgebeit, wohnungsbauprojekt, umstrukturierungsprojekt, verbindungsglied, baustein, zentrale lage, gustav zech stiftung, einladungswettbewerb, bahnhofsvorplatz süd, gesetzte teilnemher, Franz pasch, winking froh architekten, hpp architekten, ksp, jürgen engel architekten, ap88 architekten, nutzungsmix, wohnen, büro, hotel, geschäft, gastronimie, dinestleistung, ideenteil, platzgestaltung, kolonnen, anbindung, stadtloggia, bahnhofsplatz, einzelbaukörper, bürofläche gewerbefläche, hotelgebäude, vertikales akzent, wohnhaus, wohnhof, identität, fassade, öffetnlciher raum, städtebauliche maßstab, bahnhofsgebäude, hochbaurealisierungswettbewerb, auslobung, baubeginn, fertigstellung, 2020

Bild 14/27

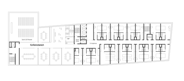
2. Preis: HPP Architekten (Düsseldorf)

Bild: HPP Architekten