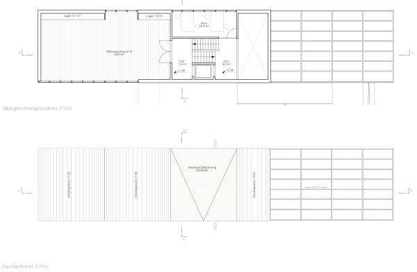
Lohsepark: 2. Preis, ARGE Hoffmann, Schlüter, Zeh (Köln)

Bild 25/46

Lohsepark: 2. Preis, ARGE Hoffmann, Schlüter, Zeh (Köln)

Bild: siehe Bildunterschrift