Die Meldung in Bildern
Ready for Boarding
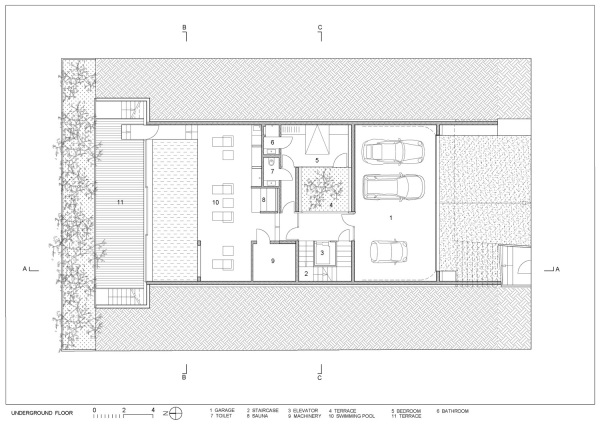
Villa von OFIS Arhitekti in Ljubljana
Bild 32/39
Grundriss: Untergeschoss