Die Meldung in Bildern
Weißer Riese
VON M mit Hotelneubau in Ludwigsburg
Bild 16/21
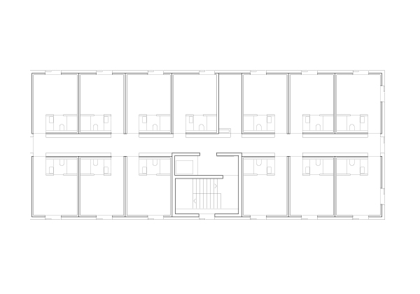
Grundriss Regelgeschoss
Bild: VON M