Die Meldung in Bildern
Weißer Riese
VON M mit Hotelneubau in Ludwigsburg
Bild 15/21
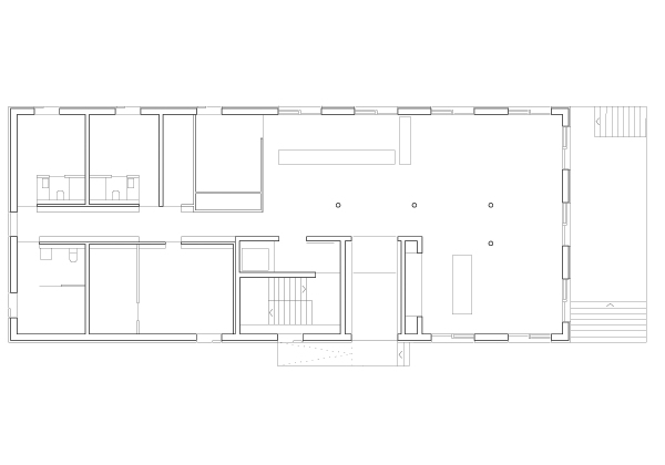
Grundriss Erdgeschoss
Bild: VON M