Die Meldung in Bildern
Doppelboden für Kunst und Handwerk
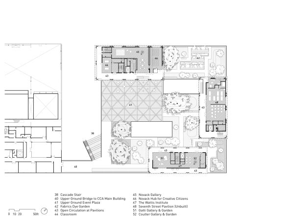
Unigebäude in San Francisco von Studio Gang
Bild 19/22
Grundriss 1. Obergeschoss
Bild: Studio Gang