Die Meldung in Bildern
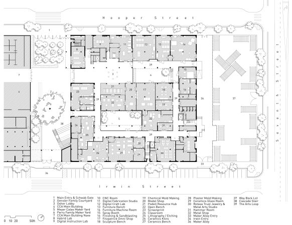
Doppelboden für Kunst und Handwerk
Unigebäude in San Francisco von Studio Gang
Bild 18/22
Grundriss Erdgeschoss
Bild: Studio Gang