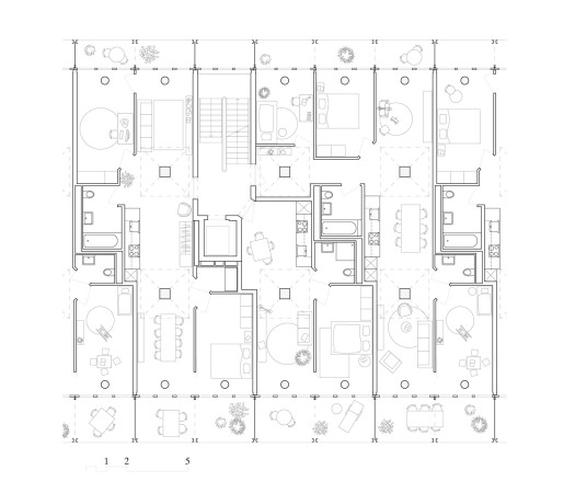
Umnutzung von Esch Sintzel Architekten in Basel
Bild 48/56
Ausschnitt Grundriss 1. Obergeschoss
Bild: Esch Sintzel Architekten