Die Meldung in Bildern
Maschinenfabrik wird Gewerbepark
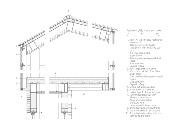
Umnutzung in Nanjing von MIX Architecture
Bild 40/42
Detail
Bild: MIX Architecture