Die Meldung in Bildern
Maschinenfabrik wird Gewerbepark
Umnutzung in Nanjing von MIX Architecture
Bild 38/42
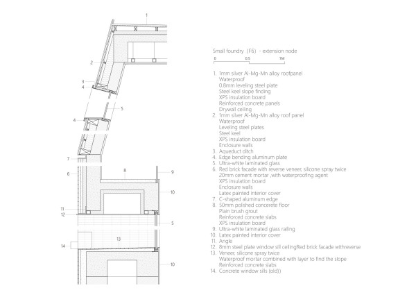
Detail
Bild: MIX Architecture