Die Meldung in Bildern
Maschinenfabrik wird Gewerbepark
Umnutzung in Nanjing von MIX Architecture
Bild 34/42
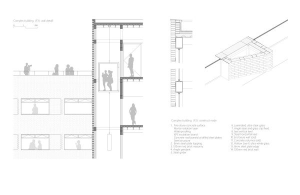
Konstruktionsdetails
Bild: MIX Architecture