Umnutzung in Nanjing von MIX Architecture
Bild 30/42
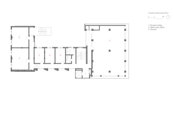
Grundriss 3. Obergeschoss
Bild: MIX Architecture