Umnutzung in Nanjing von MIX Architecture
Bild 27/42
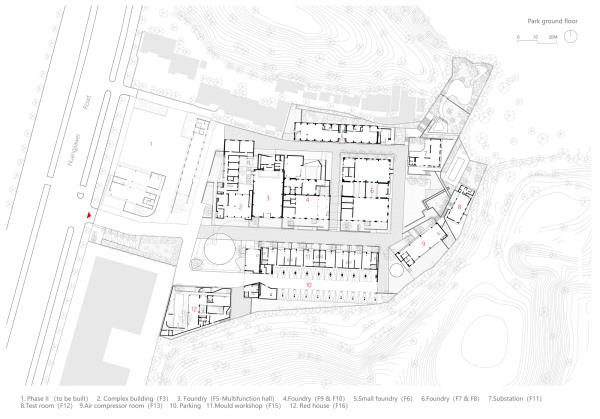
Grundriss und Nutzung Parkgeschoss
Bild: MIX Architecture