Die Meldung in Bildern
Co-Working in der Berliner Eisfabrik
Umbau und Erweiterung von GRAFT
Bild 18/20
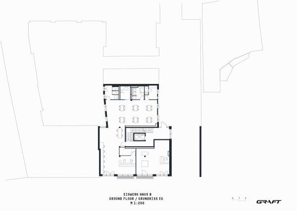
Haus B Grundriss Erdgeschoss
Bild: GRAFT GmbH