Umbau und Erweiterung in Rugby von vHH Architects
Bild 33/40
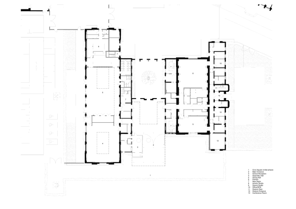
Grundriss C Station
Bild: vHH Architects